collective pavilions
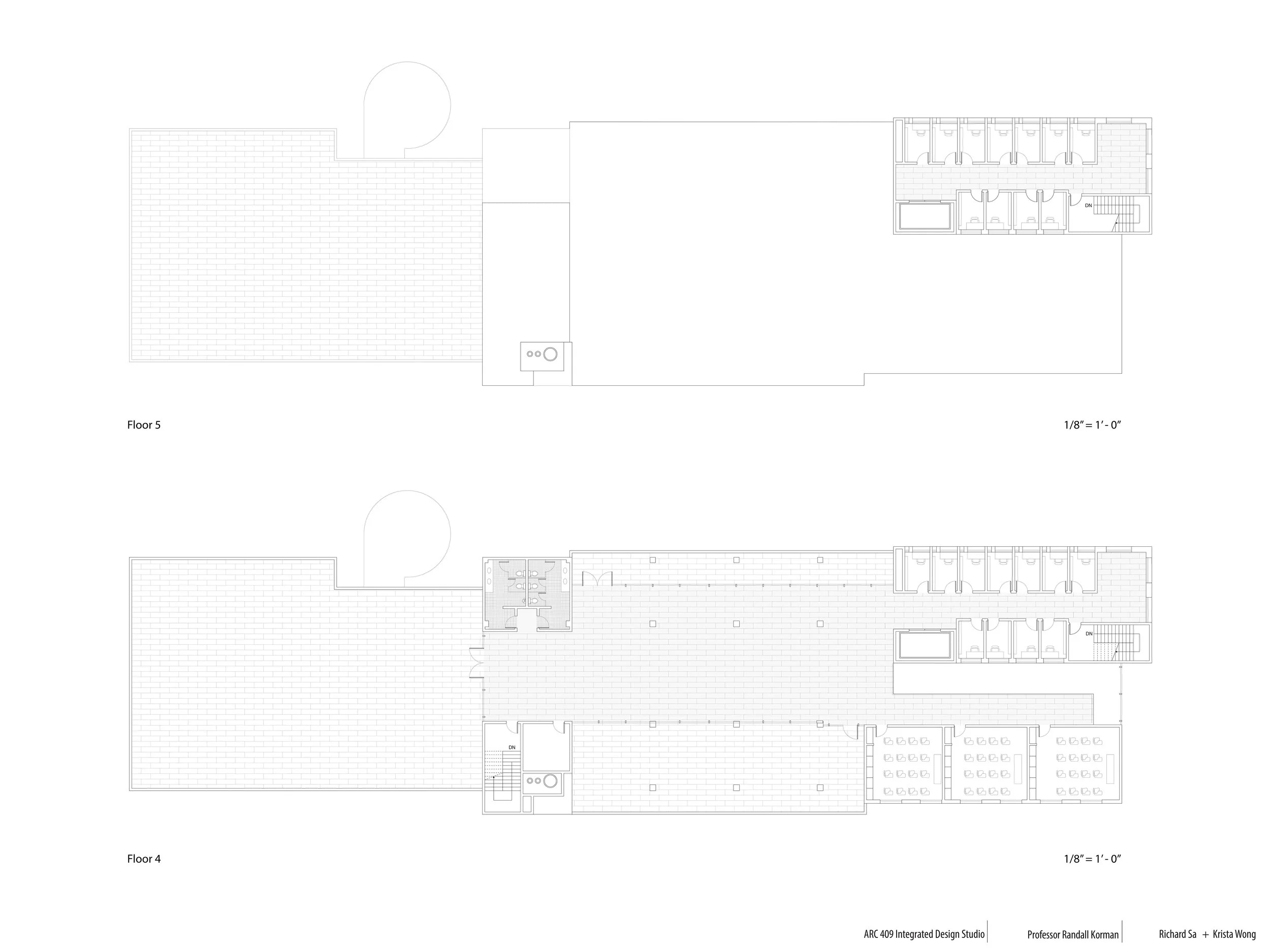
The project is essentially using the existing structure to propose a new, improved physics building on the Syracuse University Campus. In doing so, my partner and I decided to break the programs into different clusters based on access-ways from the quad on campus. Taking the elementarist approach - program is recognized from its exterior facade. Clusters that seem independent from one another but then are connected through a central spine of circulation. Bricks (flemish bond) are used as the primary material.
In collaboration with Richard Sa
Fourth Year Spring Semester.
