abortion is healthcare
::
abortion is healthcare ::
Loyola University Medical Center - MRI replacement
Location: Maywood, IL
Date Completed: 2022
Gross Area: 1,026 sf
Construction: Interior Renovation
Loyola University Medical Center - fluoroscopy equipment replacement
Location: Maywood, IL
Date Completed: 2022
Gross Area: 980 sf
Construction: Interior Renovation
Loyola University Medical Center - spec ct replacement
Location: Maywood, IL
Date Completed: 2022
Gross Area: 810 sf
Construction: Interior Renovation
macneal hospital - spec ct replacement
Location: Berwyn, IL
Date Completed: 2022
Gross Area: 460 sf
Construction: Interior Renovation
macneal hospital - cath lab replacement
Location: Berwyn, IL
Date Completed: 2022
Gross Area: 780 sf
Construction: Interior Renovation
macneal hospital - spec ct replacement
Location: Maywood, IL
Date Completed: 2022
Gross Area: 1,113 sf
Construction: Interior Renovation
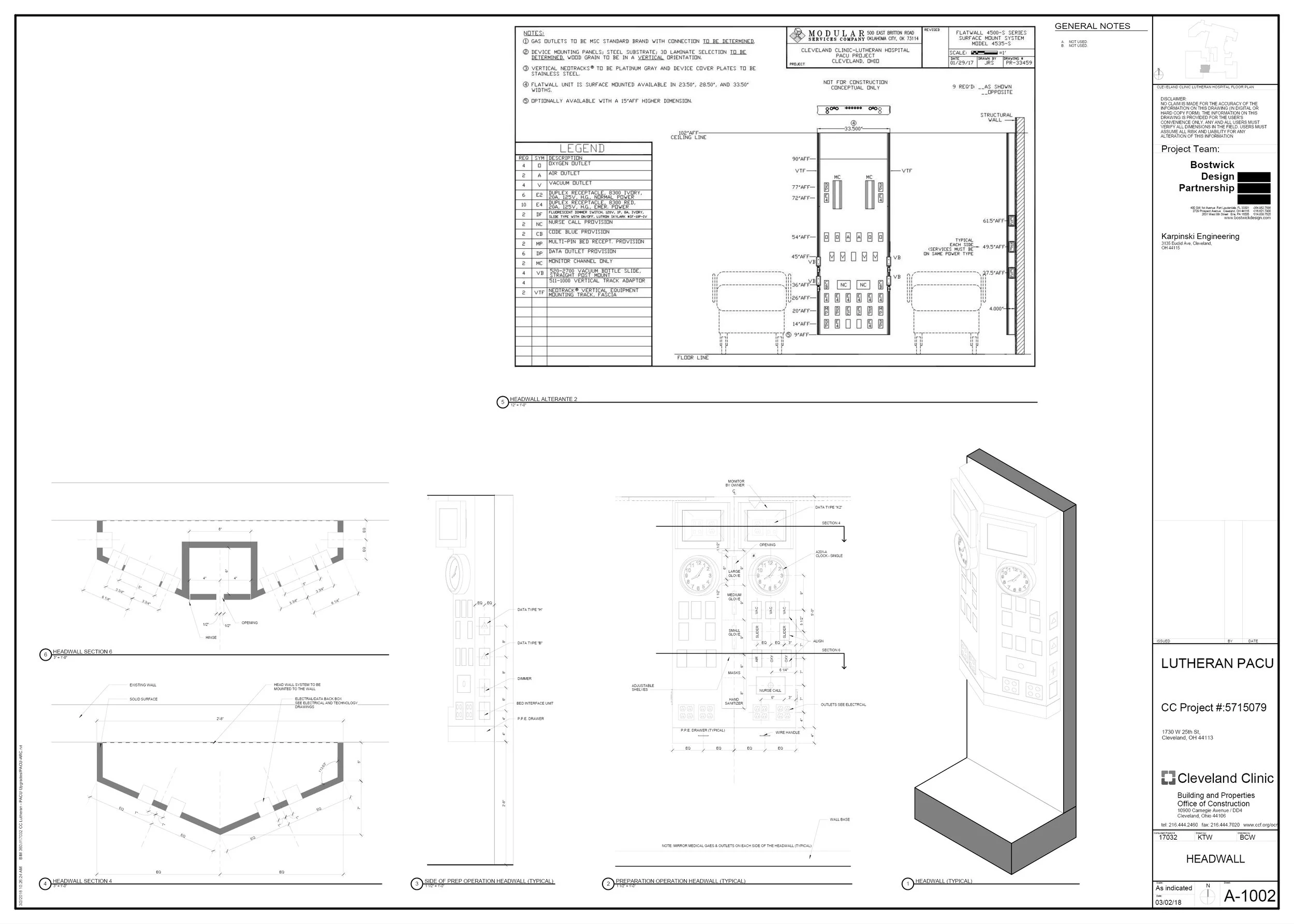
Cleveland Clinic - lutheran hospital (post-ANESTHESIA care unit)
Location: Ohio City, Ohio
Date Completed: 2018
Gross Area: 3,000 sf
Construction: Interior Renovation
cleveland clinic - crile building (scope processing room)
Location: Cleveland, Ohio
Date Completed: 2018
Gross Area: 6,000 sf
Construction: Interior Renovation
MetroHealth Hospital - Operating Room
Location: Cleveland, OH
Date Completed: 2018
Gross Area: 1,300 sf
Construction: Interior Renovation
University of PENNSYLVANIA Medical Center - Magee Women’s Hospital
Location: Pittsburgh, PA
Date Completed: 2018
Gross Area: 500 sf
Construction: Interior Renovation
saint vincent charity medical center - infill building
Location: Cleveland, OH
Date Completed: 2018
Construction: Interior Renovation


